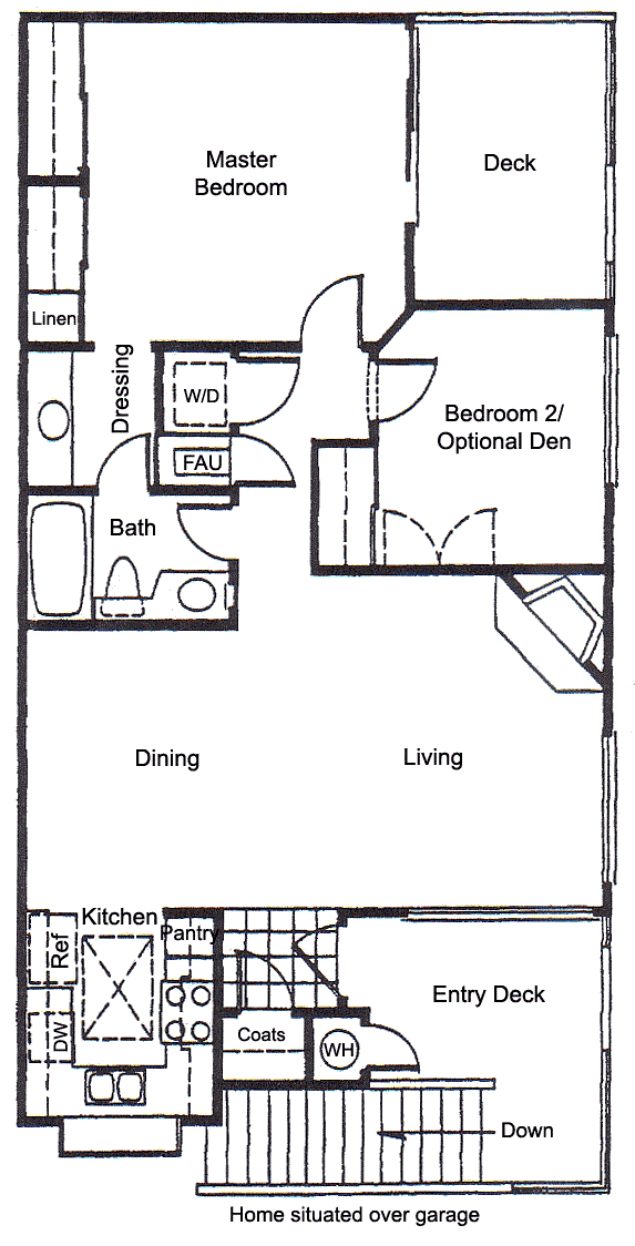
Stanford Court Irvine Floor Plans

Available Units Leasing At Uci Standford Court Apartments

Available Units Leasing At Uci Standford Court Apartments

Brand New Remodel 182 Stanford Court Apartments 182 Stanford Court Irvine Ca Rentcafe

Brand New Remodel 182 Stanford Court Apartments 182 Stanford Court Irvine Ca Rentcafe

Available Units Leasing At Uci Harvard Cornell Court Apartments

Available Units Leasing At Uci Harvard Cornell Court Apartments

Astoria At Central Park West In Irvine Ca Floor Plans

Astoria At Central Park West In Irvine Ca Floor Plans

Ambrose Apartments At Uci Available Units Now Leasing

Ambrose Apartments At Uci Available Units Now Leasing

Habs Cal 34 Sac 9 Sheet 5 Of 9 Leland Stanford House 800 N Street Sacramento Sacramento County How To Plan Architectural Floor Plans Floor Plan Design

Habs Cal 34 Sac 9 Sheet 5 Of 9 Leland Stanford House 800 N Street Sacramento Sacramento County How To Plan Architectural Floor Plans Floor Plan Design

Habs Cal 34 Sac 9 Sheet 5 Of 9 Leland Stanford House 800 N Street Sacramento Sacramento County How To Plan Architectural Floor Plans Floor Plan Design

The area has well lit tree lined streets grocery stores nearby and easy access to highways.

Stanford court irvine floor plans. Floor plans pricing. Reviews 949 502 0068 website. Menu reservations. Ratings reviews of stanford court in irvine ca.

Stanford court neighborhood is located in houston 77006 zip code in harris county. Stanford court apartment homes 1100 stanford irvine ca 92612. Prices specials features and availability subject to change. View photos details map for 138 stanford court irvine ca.

This apartment is located in irvine ca at 400 stanford court. Welcome home to convenient irvine living at stanford court. These newly renovated apartment homes feature three unique open design one and two bedroom floor plans that include major kitchen appliances. Balconies and patios are standard in many apartment floor plans.

Walking distance to the uci campus and university town center stanford court offers a wide range of amenities that include seven pools nine spas two fitness centers a state of the art clubhouse study and business center with a pc lab and project. Floor plans and square footages displayed are approximations may be based on stud to stud measurements and may vary between individual units. Highly desirable and upgraded princeton townhome within short walking distance to uci and university town center shopping center. Open design one and two bedroom floor plans large private patio or balcony with storage area unique corner design for extra privacy.

These apartment homes feature three open concept one and two bedroom floor plans with spacious full kitchens. Quoted prices are for base rent only and do not include other fees such as utilities associated pet fees if applicable and minimum lease terms and occupancy guidelines may apply unless otherwise specified. Get directions reviews and information for stanford court apartment homes in irvine ca. Find your new home at stanford court located at 400 stanford court irvine ca 92612.

400 stanford court irvine ca 92612.

Hghwc5apwiu Mm

Hghwc5apwiu Mm

89 Stanford Ct 63 Irvine Ca 92612 Mls Oc18052299 Redfin

89 Stanford Ct 63 Irvine Ca 92612 Mls Oc18052299 Redfin

83 Stanford Ct Irvine Ca 92612 House For Rent In Irvine Ca Apartments Com

83 Stanford Ct Irvine Ca 92612 House For Rent In Irvine Ca Apartments Com

University Town Center Irvine Ca Apartment Finder

University Town Center Irvine Ca Apartment Finder

Dartmouth Court Apartments Available Units Leasing Now

Dartmouth Court Apartments Available Units Leasing Now

Now Leasing In Irvine Quail Hill Apartments Availabilites

Now Leasing In Irvine Quail Hill Apartments Availabilites

Oma Inaugurates Norra Tornen With Completion Of Innovationen Tower Residential Building Plan Architectural Floor Plans Apartment Architecture

Oma Inaugurates Norra Tornen With Completion Of Innovationen Tower Residential Building Plan Architectural Floor Plans Apartment Architecture

1st Floor Floor Plan Floor Plans House Floor Plans Modern Style Homes

1st Floor Floor Plan Floor Plans House Floor Plans Modern Style Homes

Residence 3x New Home Plan In Altair Irvine Lumiere By Lennar In 2020 New House Plans House Plans Lennar

Residence 3x New Home Plan In Altair Irvine Lumiere By Lennar In 2020 New House Plans House Plans Lennar

The Best Uci Off Campus Housing Irvine University Of California Irvine Uc Irvine Campus

The Best Uci Off Campus Housing Irvine University Of California Irvine Uc Irvine Campus

Los Olivos Apartments At Irvine Spectrum Available Units

Los Olivos Apartments At Irvine Spectrum Available Units

Park Place Apartments In Irvine Now Leasing Available Units

Park Place Apartments In Irvine Now Leasing Available Units

San Diego Naval Complex Installations Lincoln Military Housing San Diego Houses Lincoln Military Housing Military Housing

San Diego Naval Complex Installations Lincoln Military Housing San Diego Houses Lincoln Military Housing Military Housing

Now Leasing Available Apartments At Monte Vista In Mission Valley

Now Leasing Available Apartments At Monte Vista In Mission Valley

Source : pinterest.com